Για μία δίκη που συγκεντρώνει τεράστιο ενδιαφέρον και αναμένεται να απασχολήσει ακόμη και ξένα Δίκτυα, μιας και το αντικείμενο συνδέεται με την ασφάλεια των σιδηροδρόμων, το Εφετείο της Λάρισας δίνει μόλις 17 τ.μ. δίπλα στην αίθουσα του ακροατηρίου για τους δημοσιογράφους, Έλληνες και ξένους.
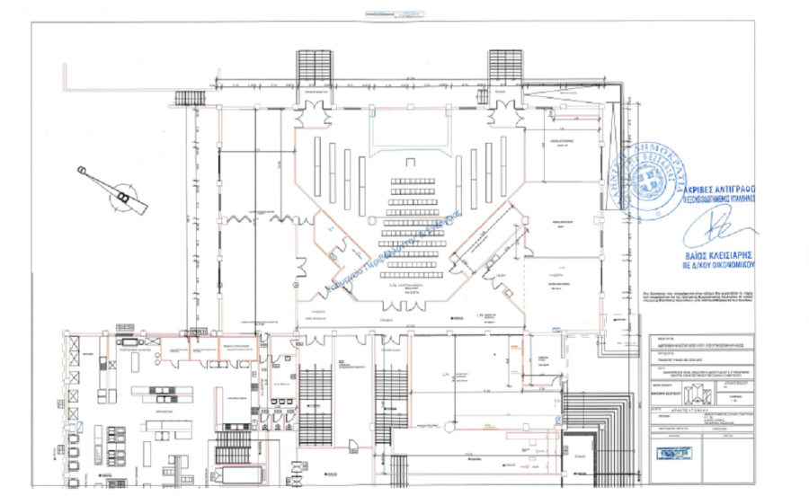
Η Διευθύνουσα το Εφετείο Λάρισας ανήρτησε στην ιστοσελίδα του Εφετείου Λάρισας την κάτοψη του χώρου στον οποίο θα διεξαχθεί ενώπιον του Τριμελούς Εφετείου Κακουργημάτων η δίκη για το πολύνεκρο δυστύχημα των Τεμπών. Η αίθουσα του Τύπου έχει έκταση μόλις 17,19 τ.μ.
Σε μία δίκη στην οποία θα παρασταθούν περί τους διακόσιους πενήντα (250) δικηγόρους, η αίθουσα που θα φιλοξενηθούν στις διακοπές της διαδικασίας μόλις που ξεπερνά τα 50 τ.μ.
Σε 54 τ.μ. εκτείνεται ο χώρος μαρτύρων, ενώ το ακροατήριο καταλαμβάνει 283,75 τ.μ.































